| 
            
    
             |      | 
             
            
 Features & Specifications
                
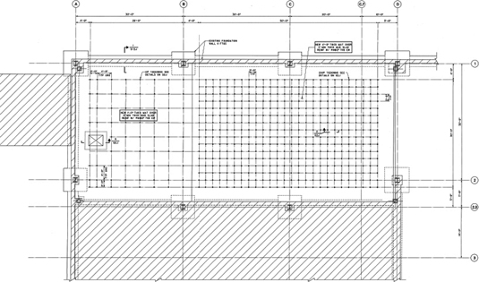
 Strong Floor
	                2,000 square feet (approximately 55 feet x 35 feet) 
	                
	                	- Solid, four-foot-thick reinforced concrete slab
 
	                	- Regular grid of 416 tie-down anchors (26 anchors east to west, 16 anchors south to north) in a 2 foot by 2 foot grid to permit attachment of fixtures to floor for a wide range of tests
 
	                	- Each anchor point comprises a single threaded hole with removable coupler inserts that enable connection to bars up to 2 inches in diameter, 
						capable of withstanding forces up to 200,000 lbs. 
 
	                 
                
				  
                
 Staging Area
	                1,000 square feet (approximately 30 feet x 35 feet) 
					
						- 
						
 Regular grid of 56 anchor points in a 4 foot by 4 foot grid to permit attachment of fixtures during construction (seven anchors east to west, eight anchors south to north) 
						- Each anchor point comprises a single threaded hole for three-quarter inch diameter fasteners.
 
					 
                
 Loading Dock 
					
						- Loading dock door - 14 feet wide, 16 feet high - for loading and unloading directly into staging area using overhead crane
 
						- Sufficient space for maneuvering a 60-foot-long specimen into the lab. 
						
 
					 
                
 Crane
	                 Double girder overhead crane with 20-ton capacity 
					
						- Movable in two directions with remote control and variable speeds
 
						- Crane access to edges of laboratory and full access to loading dock. 
						
 
					 
                     
 Steel Reaction Frame
	                 Reconfigurable for vertical or horizontal loading 
					
						- Can be placed anywhere on the strong floor
 
						- Designed for 1 million pounds of combined loading in fatigue. 
						
 
					 
                    
                     
 DAQ Equipment
	                 NI Compact DAQ Chasseys with C-series modules 
					
						- 224 Voltage Channels
 
						- 280 Strain Channels
 
						- Expandable and Portable
 
						- Connected via Ethernet Cable
 
					 
                    
                    
 Forklift
	                 Komatsu Forklift 
					
						- 10,000 lb Capacity
 
						- 3-Stage Mast
 
						- Propane Powered
 
						- Hydraulic
 
					 
                    
                    
 4-Column Load Frame
	                 
                    MTS 311.21 ServoHydraulic Load Frame 
					
						- MTS 311 Series
 
						- 110 kip Capacity
 
						- Hydraulic Grips
 
					 
                    
 
 
  
                    
                    
                    
 Machine Shop
                     
                    Fully equipped shop borders strong floor  
					
						- Accommodates structural, mechanical and electrical needs
 
						- Adjacent utility room housing air compressor for jackhammers, impact wrenches, vibrators, and sandblasting equipment.
 
					 
 
  
                
 Control Room
	                Room with large windows borders strong floor to view lab  
					
						- Houses data acquisition equipment, controllers, and computing equipment
 
						- Work area for laboratory users. 
 
					 
                
 Equipment 
					
						- Hydraulic pump and hydraulic service manifolds for hydraulic actuators and testing machines
 
						- Array of actuators with capacities up to 330,000 lbs for cyclic testing
 
						- Hydraulic testing machines for tension and tension/torsion testing
 
						- Data acquisition system with several hundred channels
 
						- Still image and video camera systems for synchronized recording
 
						- Arc welding and torching permitted throughout laboratory
 
						- Concrete pouring area
 
						- Specialized electrical system for all power needs
 
					 
                    
                  
             |   |